
Commercial Office Renovation · Northline Architects · 2025
Kang Law Firm
Commercial office renovation documentation for a two-story law firm at 335 North Main Street, Canandaigua, NY — demolition plans, proposed floor plans, life safety analysis, reflected ceiling plan, and door schedules across a 9-sheet construction set under NYS Building Code 2020.
Project Overview
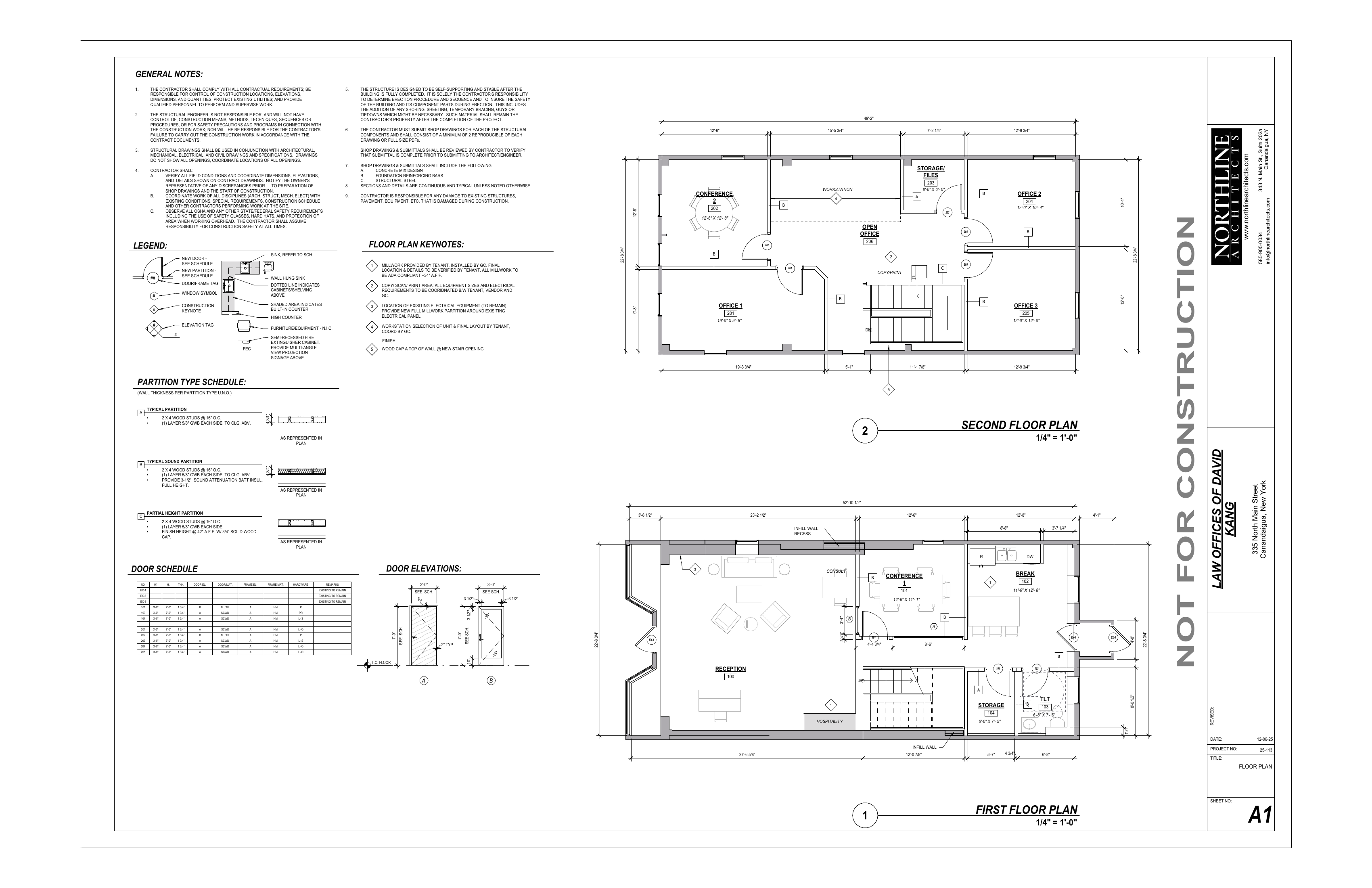
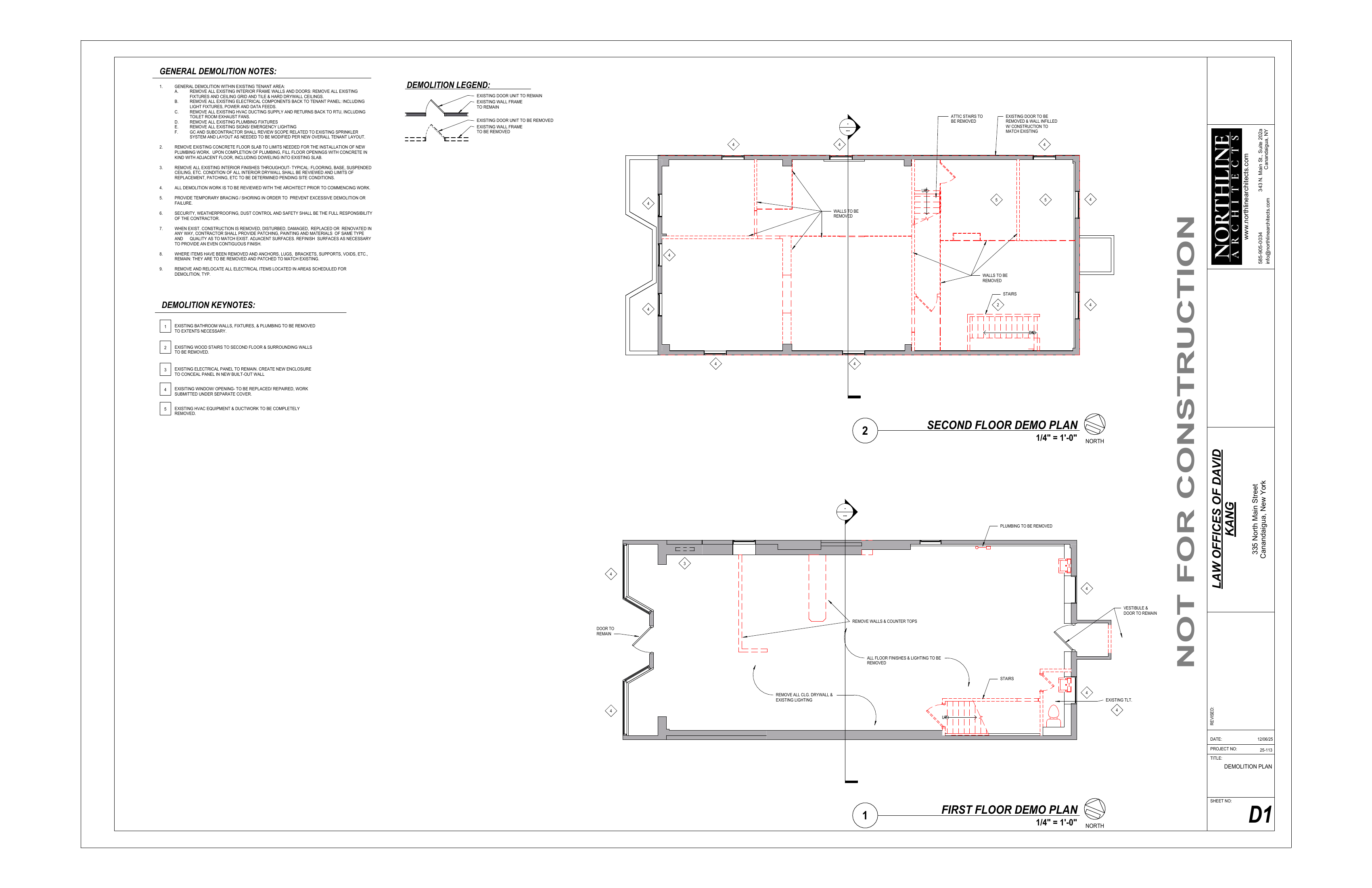
Kang Law Firm required full renovation documentation for a two-story commercial office space being converted into a law firm at 335 North Main Street, Canandaigua, NY. The project was developed under the New York State Building Code 2020 and included both demolition documentation of existing conditions and proposed construction drawings for the new layout.
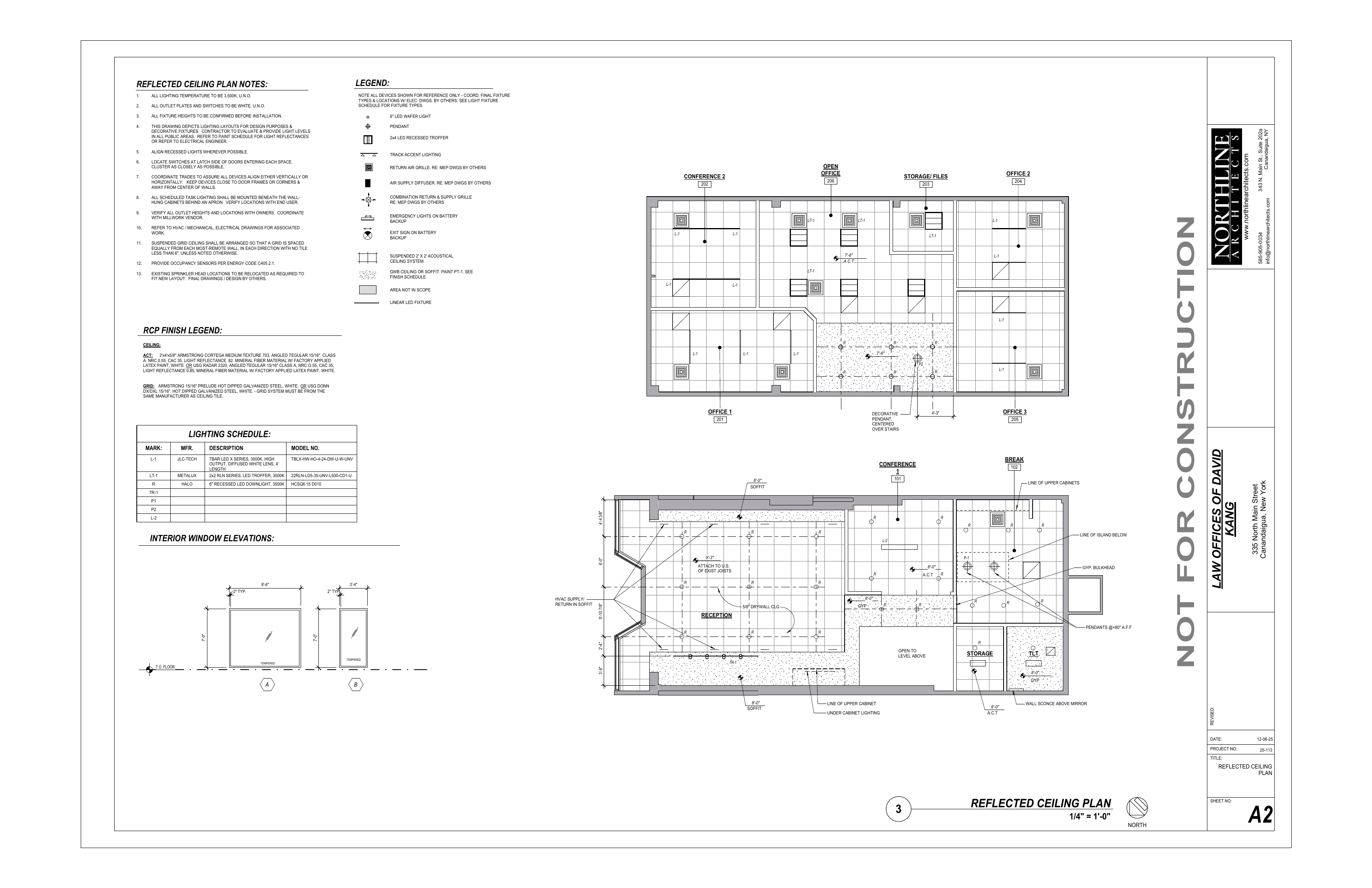
The construction document set was produced in Revit, beginning with demolition plans that clearly documented scope of removal, followed by proposed floor plans, life safety analysis, reflected ceiling plan with lighting schedule, and comprehensive door and interior window schedules.
All drawings produced at Northline Architects · Displayed with permission for portfolio use






Conceptual interior visualization developed to communicate spatial and material intent of the reception area.

Documentation Scope
Drawing production included first and second floor demolition plans, proposed floor plans, life safety plan with egress path calculations and occupant load verification, reflected ceiling plan with lighting fixture schedule, door schedule with hardware sets and frame types, interior window elevations, and field measurement plans of existing conditions. Sheet coordination required careful management of drawing references, sheet numbering, and title block consistency across 9 sheets.
Revision Process
Work began with reviewing architect video instructions and existing Revit project files to understand the renovation scope. Drawings were developed across multiple revision cycles — integrating architect redline markups with detailed written instructions covering egress calculations, dimension alignment, door schedule corrections, and sheet coordination.
All construction drawings shown are the work product of Northline Architects. Displayed here with permission for portfolio purposes only. Hasini Kadaru contributed to this project as an Architectural Intern under licensed architect supervision.