
Commercial Tenant Fit-Out · Northline Architects · 2025
Community Bank N.A. — 3300 Monroe Avenue
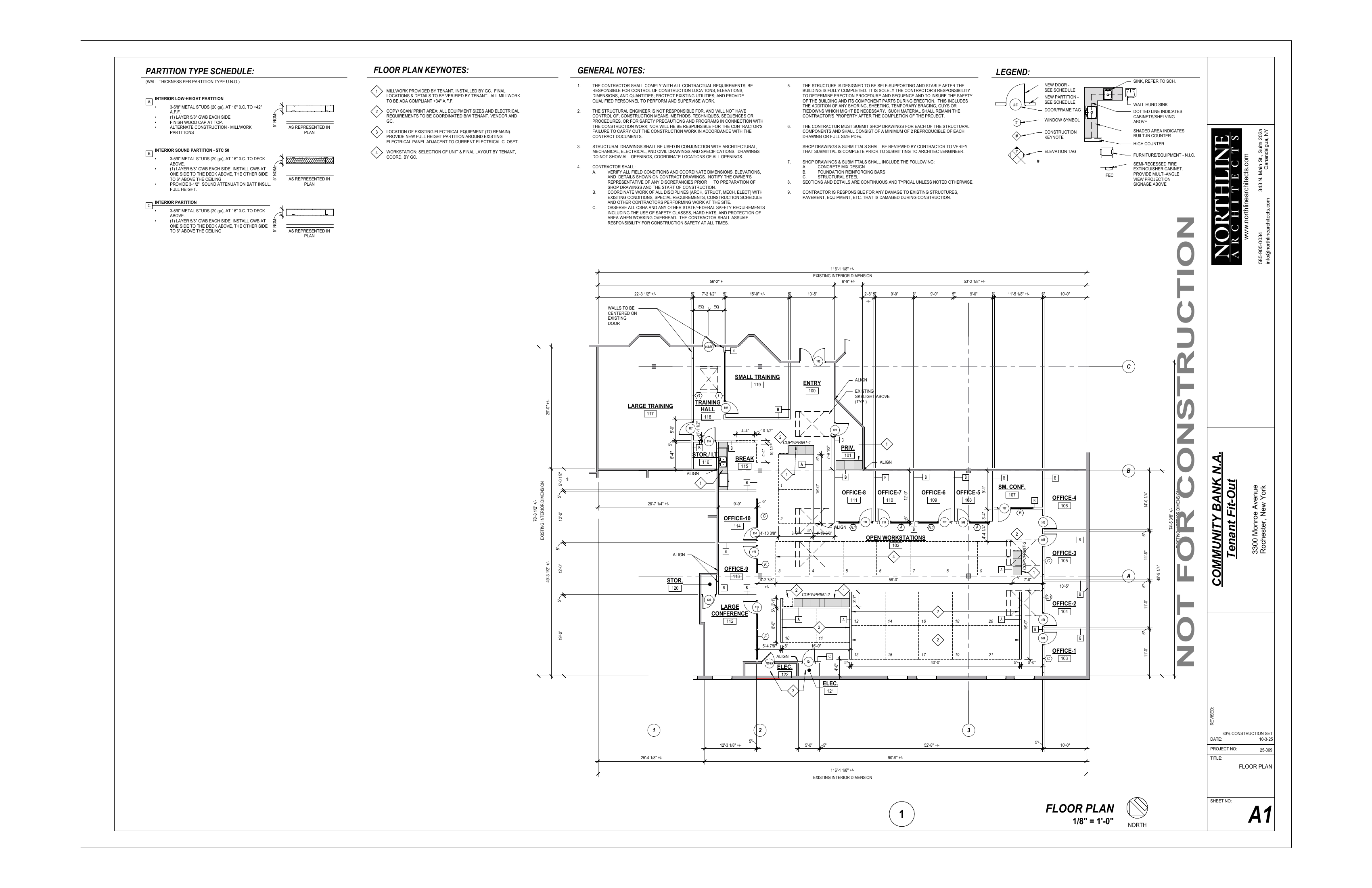
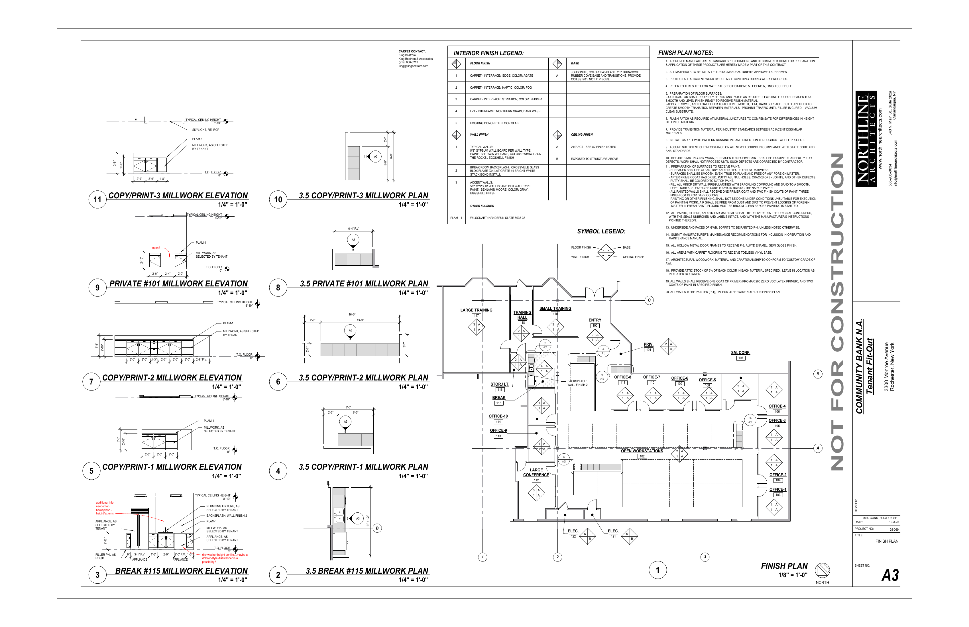
Third-floor tenant fit-out documentation for a commercial banking office at 3300 Monroe Avenue, Rochester, NY — on-site field measurement, demolition plan, proposed floor plan, life safety analysis, reflected ceiling plan, finish plan with millwork elevations, and door schedules across an 8-sheet construction set under NYS Building Code 2020.
Project Overview
Community Bank N.A. required full tenant fit-out documentation for a third-floor commercial banking office at 3300 Monroe Avenue, Rochester, NY. The project was developed under the New York State Building Code 2020 and involved both existing condition documentation through an on-site field measurement and complete construction drawings for the proposed new layout.
The proposed program included open workstation areas, private offices, training rooms, a large conference room, break room with millwork, and a reception area — documented across a coordinated 8-sheet construction set.
All drawings produced at Northline Architects · Displayed with permission for portfolio use








Documentation Scope
Drawing production included demolition plan, proposed floor plan, life safety plan with egress path verification, reflected ceiling plan with lighting fixture schedule, finish plan with millwork elevations, door schedule, interior window elevations, and accessibility standards sheet. All drawings were produced at 1/8" = 1'-0" scale across 8 coordinated sheets.
Revision Process
Work began with an on-site field measurement on September 17, 2025 — physically measuring existing conditions across the third floor. Construction documents were then developed in Revit across multiple revision cycles, incorporating architect feedback on room layouts, ceiling heights, lighting coordination, and millwork details to prepare a complete permit-ready set.
All construction drawings shown are the work product of Northline Architects. Displayed here with permission for portfolio purposes only. Hasini Kadaru contributed to this project as an Architectural Intern under licensed architect supervision. Site photography taken during field measurement visit on September 17, 2025.




