
Commercial Interior · Northline Architects · 2025
Taft Aesthetics
Complete construction document set for a two-story commercial interior in Wilson, NC — architectural, structural, life safety, and coordination drawings across an 8-sheet permit set developed under the 2018 North Carolina State Building Code.
Project Overview
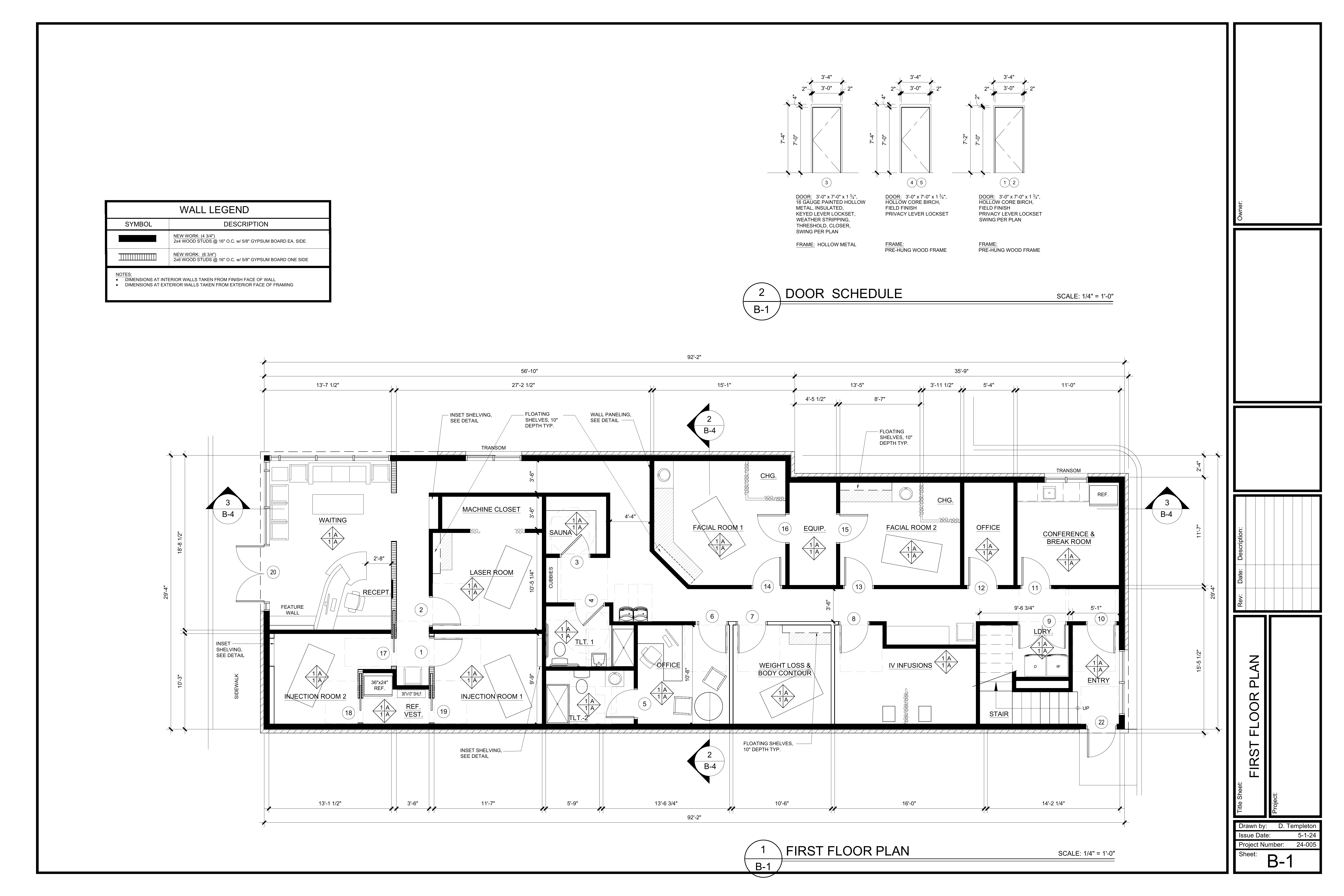
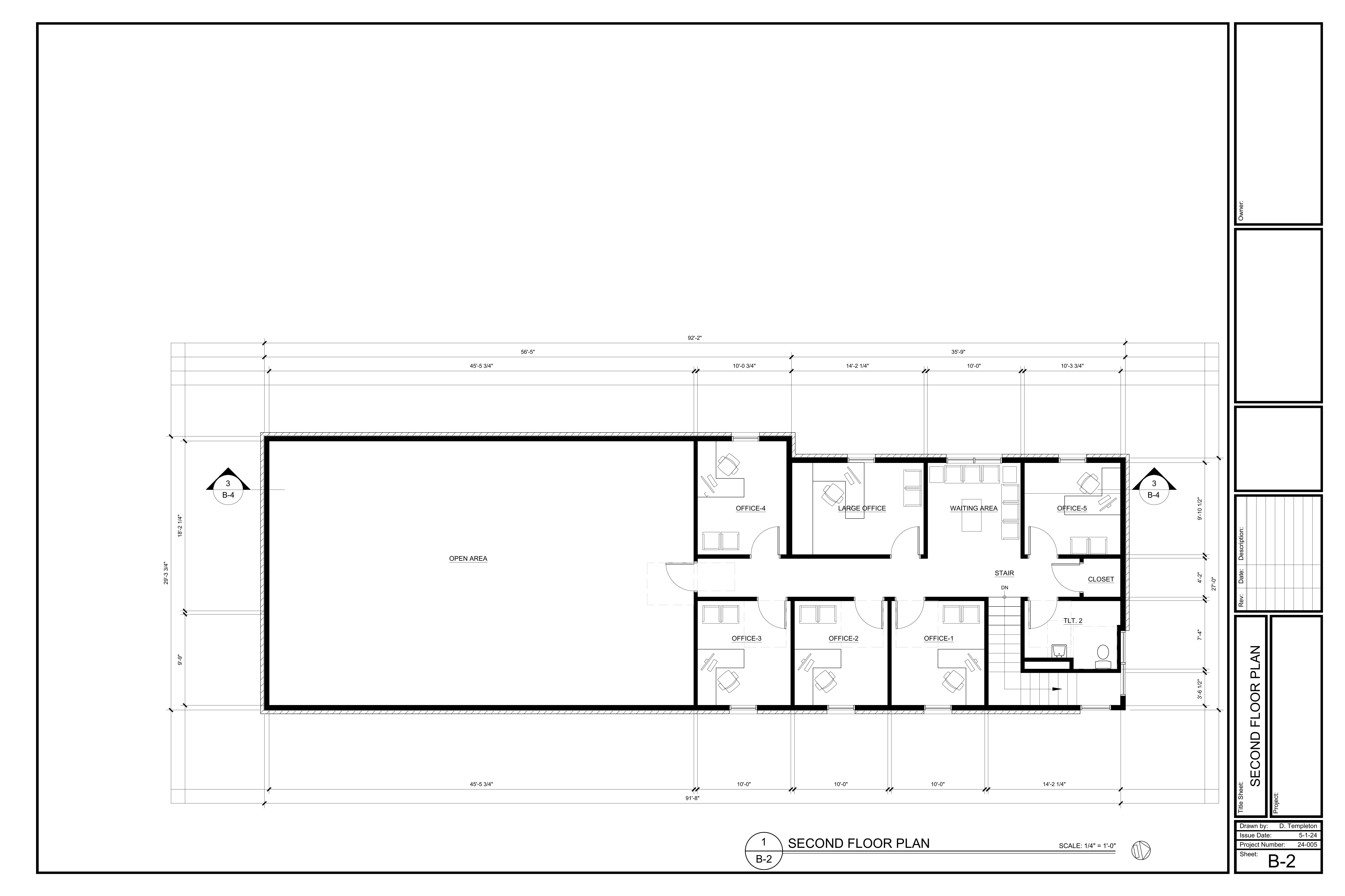
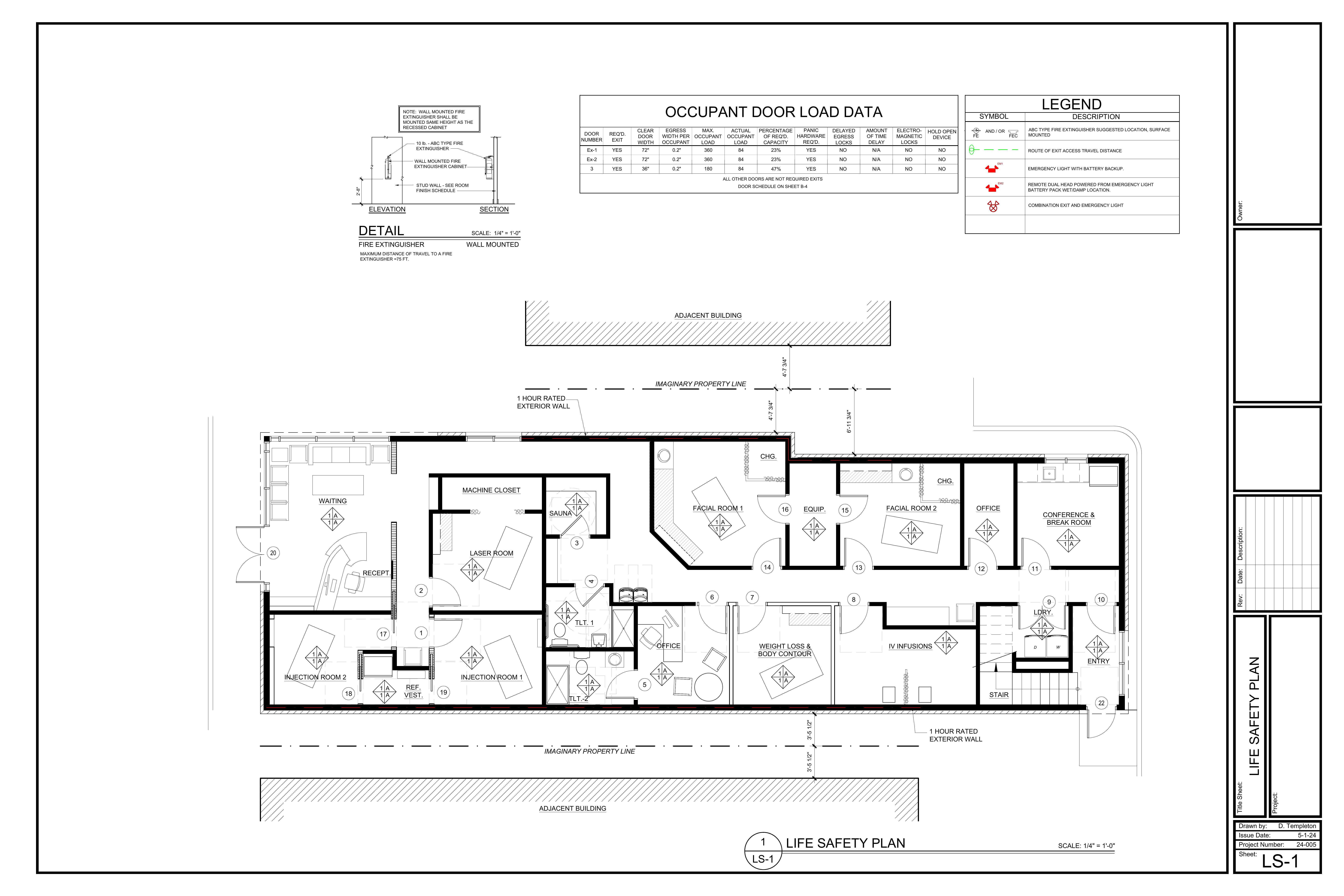
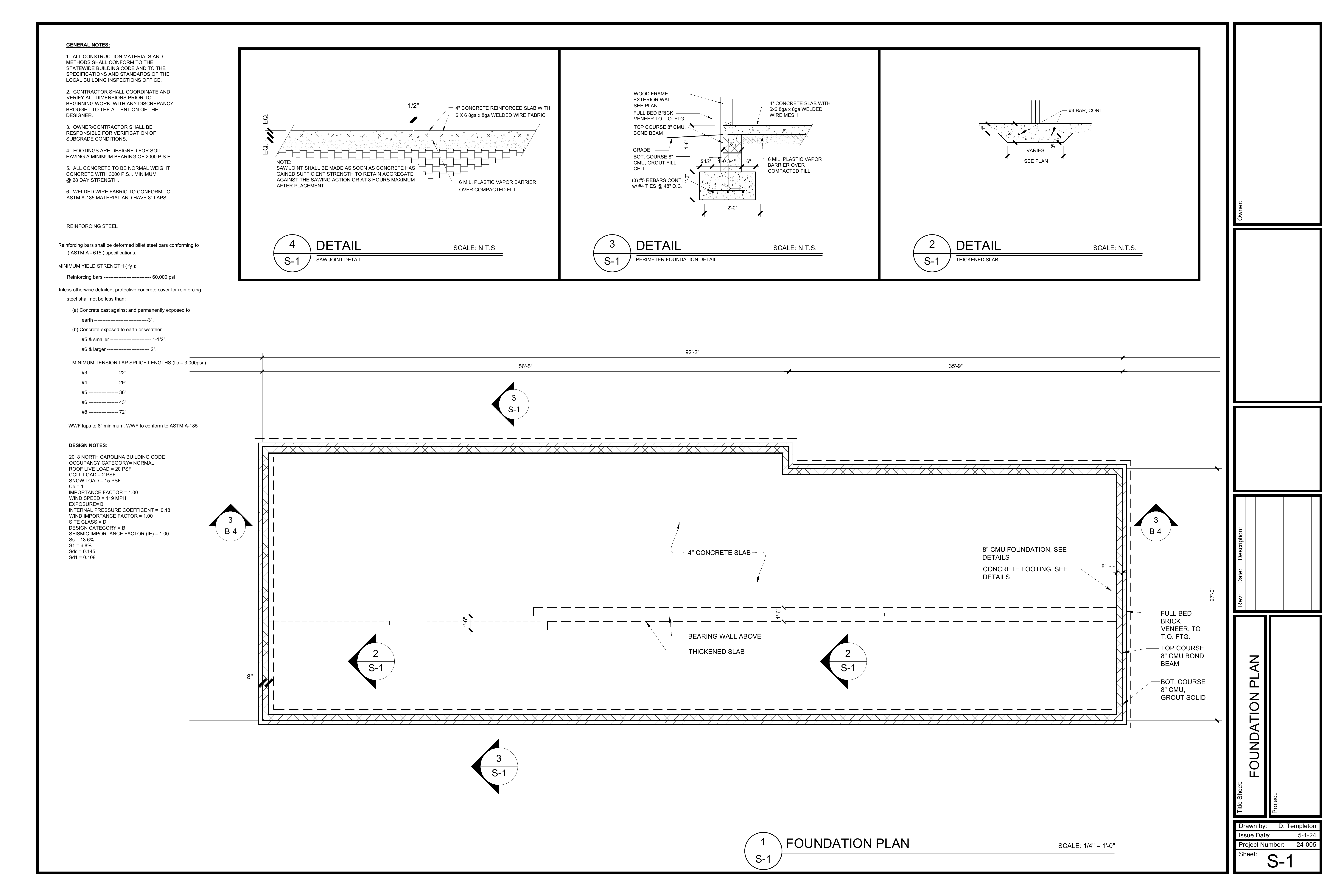
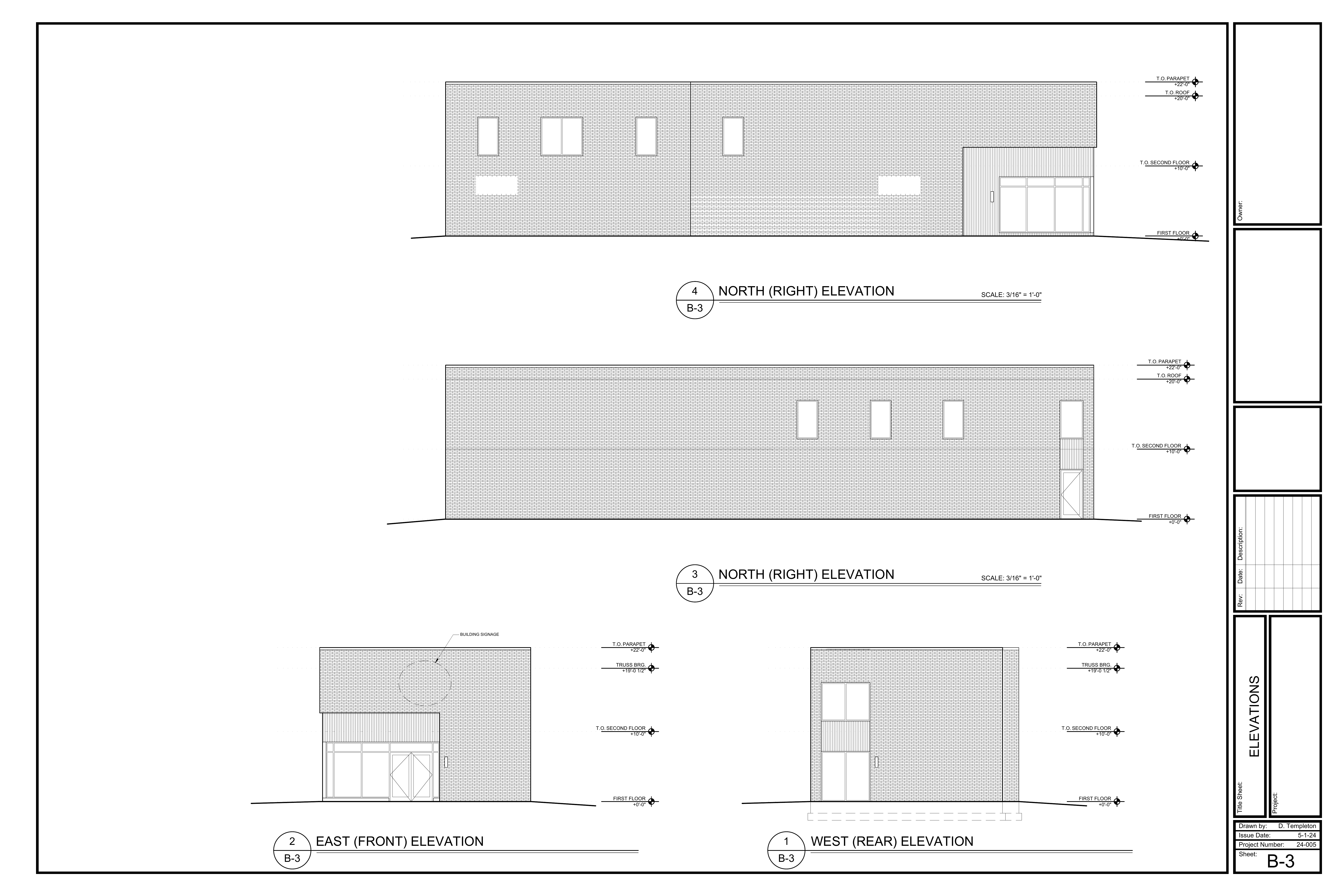
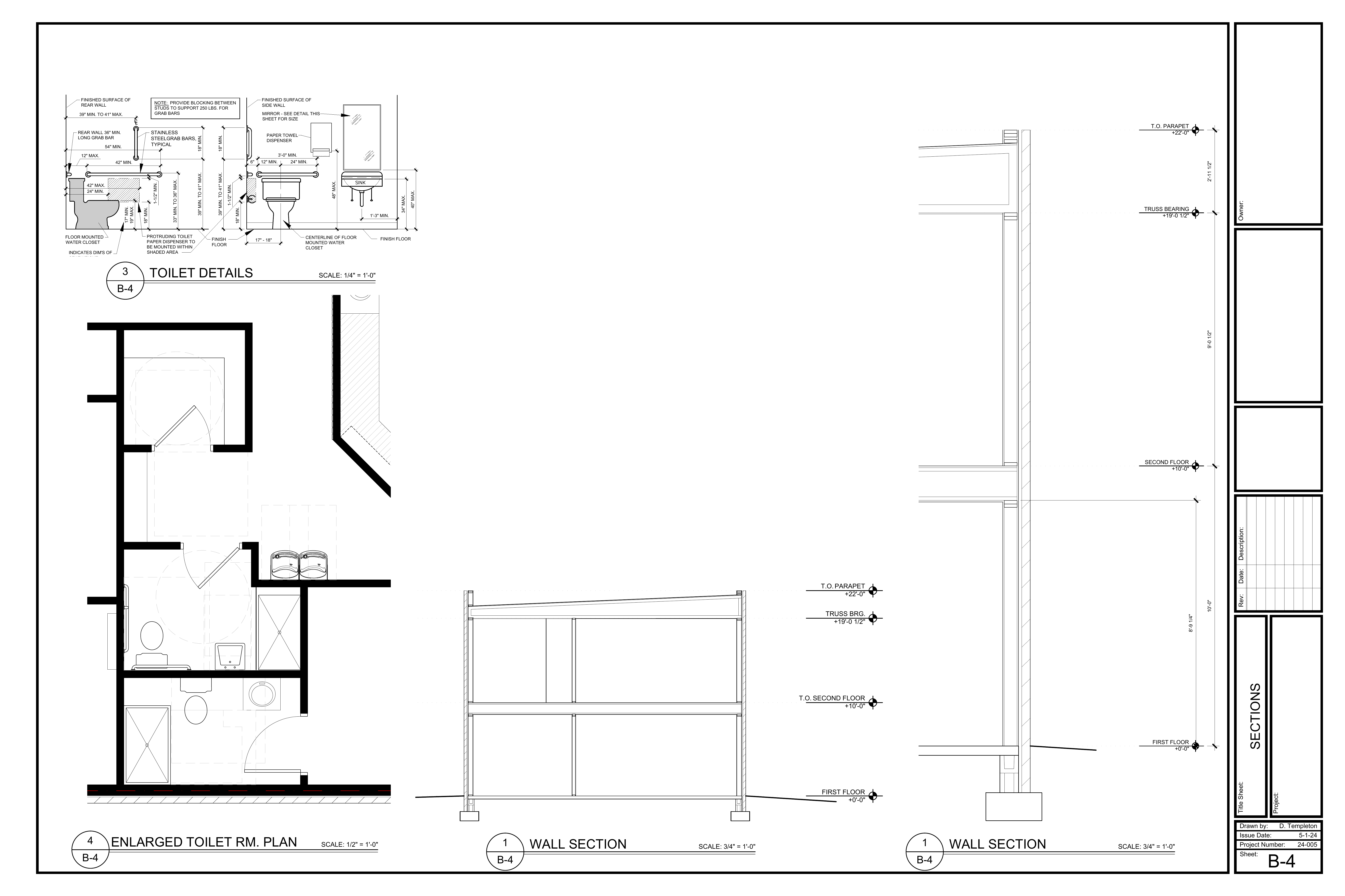
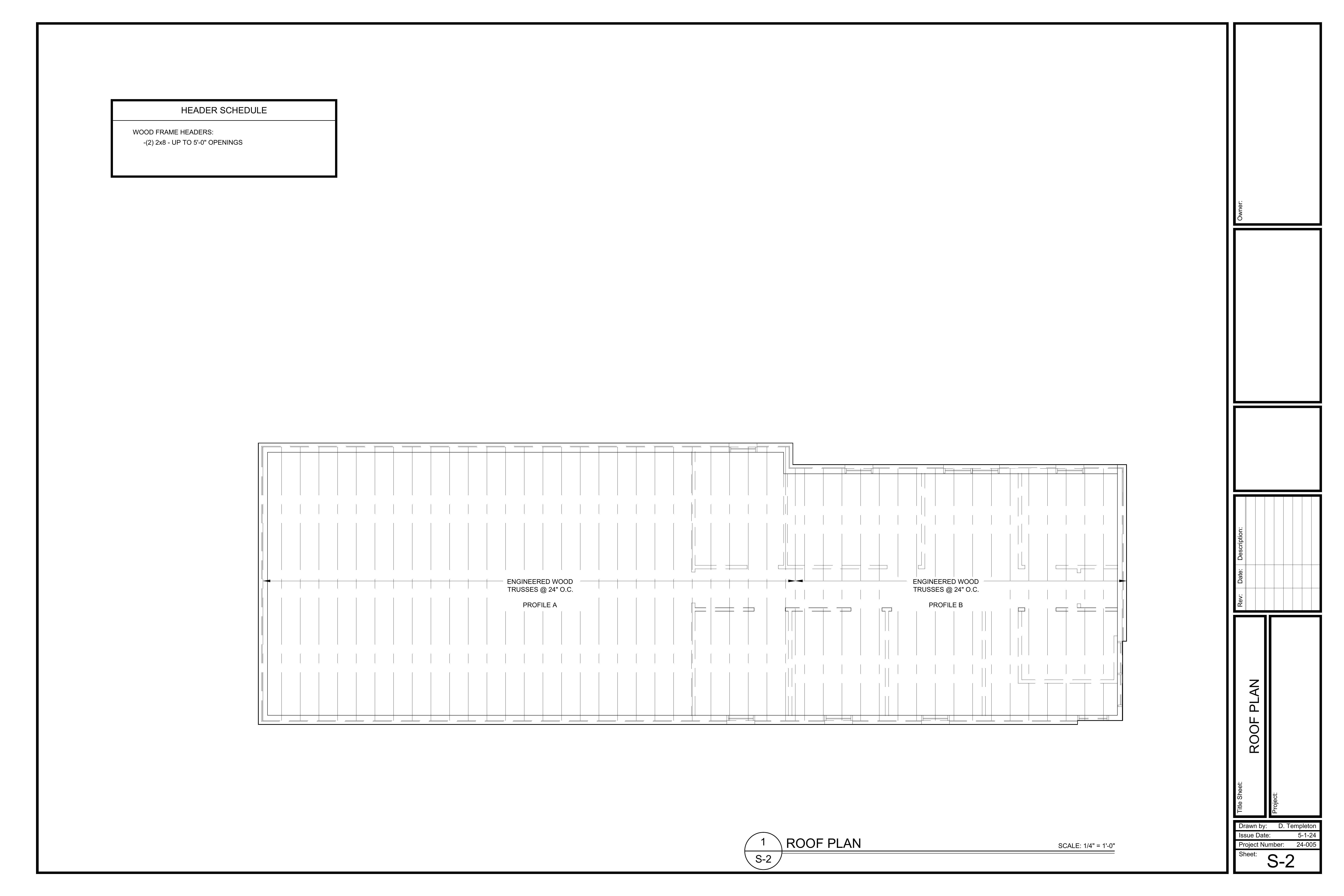
Taft Aesthetics required production of a complete construction document set for a two-story commercial interior in Wilson, NC under the 2018 North Carolina State Building Code. Drawing production included life safety plan, foundation plan, roof plan, door schedules, building sections, exterior elevations, and enlarged bathroom details. Sauna and ventilation coordination required resolving conflicts between mechanical requirements and interior layout across multiple revision cycles.
All drawings produced at Northline Architects · Displayed with permission for portfolio use








SketchUp massing model developed during design development to communicate building form and material intent.


Work was completed across multiple revision cycles — reviewing redline markups, updating drawings in AutoCAD, coordinating sheet references, and preparing PDFs for client and contractor review.
All construction drawings shown are the work product of Northline Architects. Displayed here with permission for portfolio purposes only. Hasini Kadaru contributed to this project as an Architectural Intern under licensed architect supervision.