
Institutional · Student Housing · S.S. Infrastructure Pvt. Ltd. + SVCA · 2019
Student Housing Complex
Minority Residential School Complex for Boys at Mahabubnagar District — high-density student housing with modular room planning, centralized social spaces, structured residential organization, and shared dining and recreation facilities across four floors.
Project Overview
The Student Housing Complex was designed for the Construction of a Minority Residential School Complex for Boys at Mahabubnagar District — a real-program project requiring structured, high-density residential accommodation with shared dining, recreation, and study facilities across four floors.
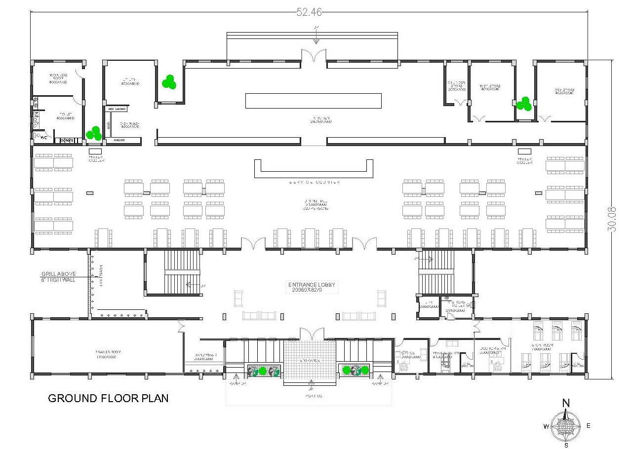
The building footprint of 52.46m × 30.08m is organized around a central spine connecting two residential wings on each floor. The symmetrical plan creates clear wayfinding while maximizing room capacity within each wing.
Ground Floor
The ground floor is organized around a large central dining hall with full kitchen, service counter, and storage. A prayer room, warden's room, office spaces, and entry lobby complete the ground level program.
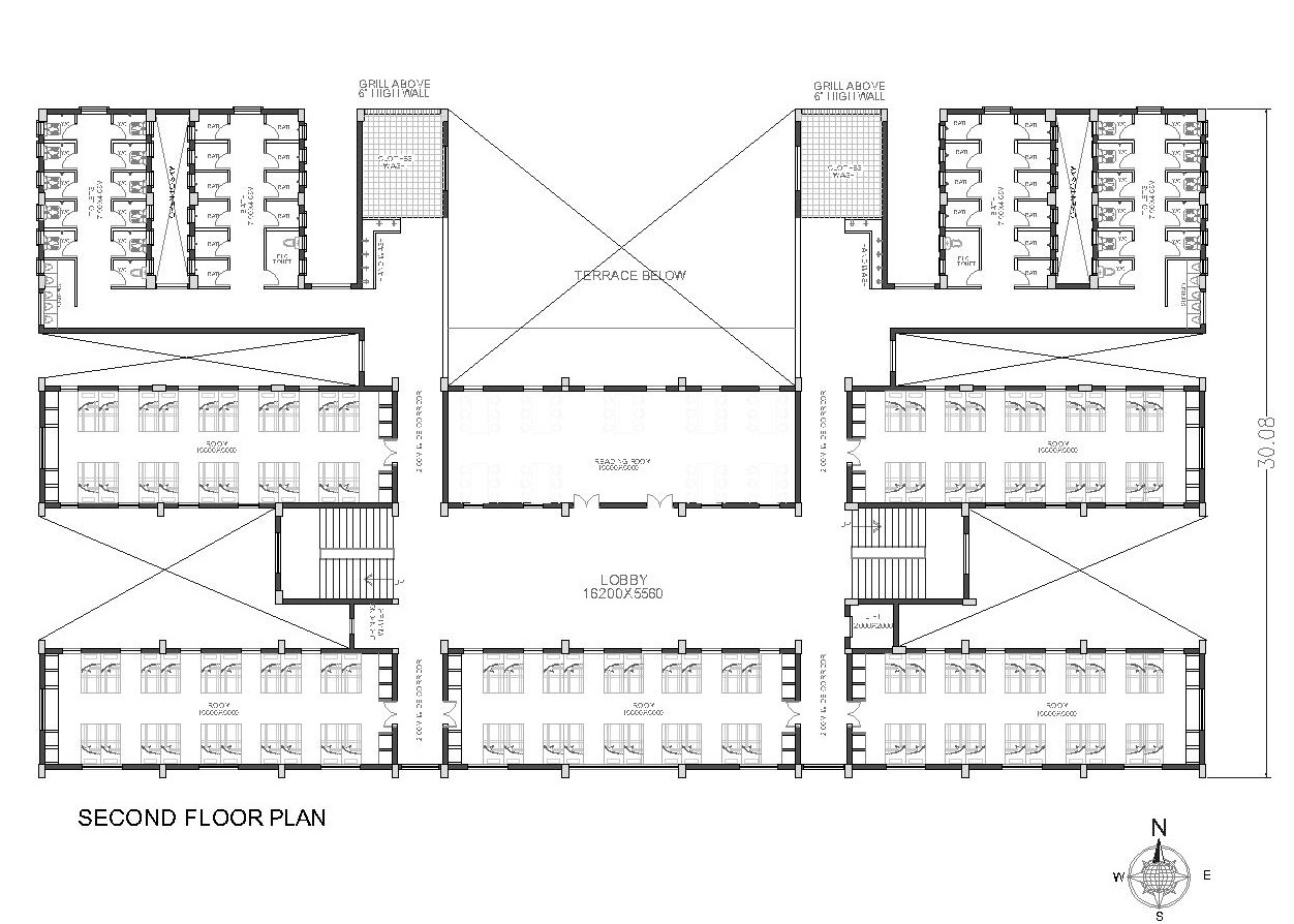
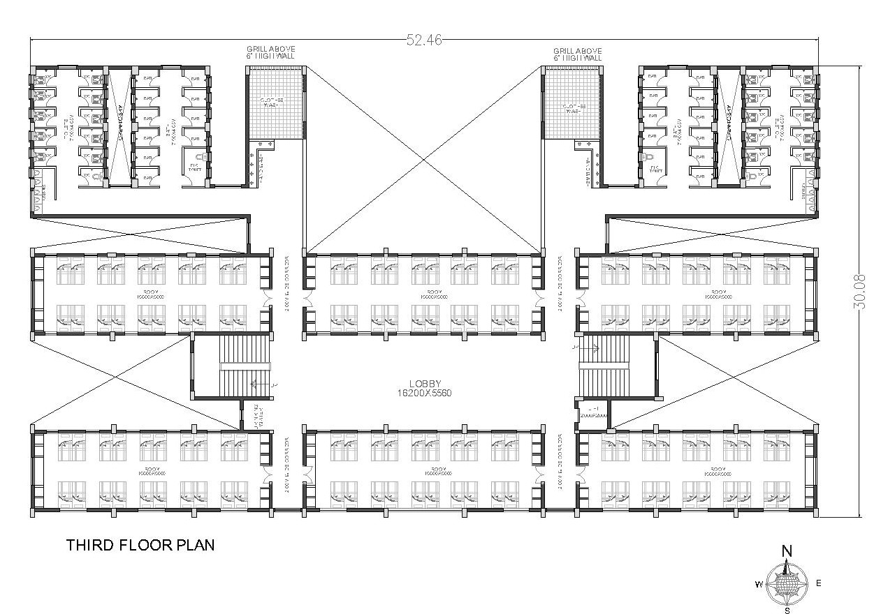
Upper Floors
Floors one through three follow a consistent dormitory room layout — student rooms arranged in double-loaded corridors with shared bathroom facilities at each wing. The first floor includes a Recreation Room and Terrace. The second floor places a Reading Room at the central position.
Academic project produced at Sri Venkateshwara College of Architecture · S.S. Infrastructure Pvt. Ltd. · Displayed for portfolio purposes





Planning Approach
The design prioritizes clarity of organization and efficiency of layout — a symmetrical double-loaded corridor plan allows maximum room count per floor while maintaining legible circulation. The central spine serves as both a structural and programmatic organizing element, anchoring shared amenities at the building's midpoint across each level.
Room Standardization
Dormitory rooms were standardized at 1,000 × 5,000 to allow modular repetition across all three residential floors. Shared bathroom cores are positioned at the end of each wing, minimizing plumbing runs while serving the maximum number of rooms per cluster.