
Multi-Family Residential · S.S. Infrastructure Pvt. Ltd. + SVCA · 2018
3BHK Residential Flats, Alwal
Multi-unit residential apartment complex on a 40' × 40' corner site — efficient layout planning, furniture integration, and architectural visualization across typical, first, and third floor plans with two 3BHK units per floor.
Project Overview
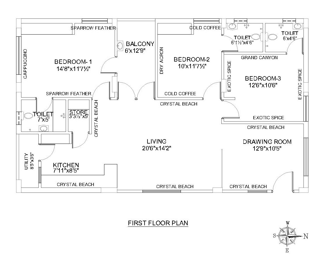
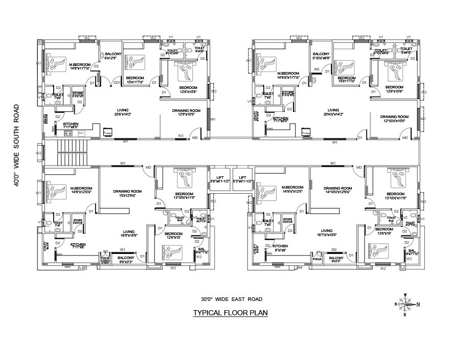
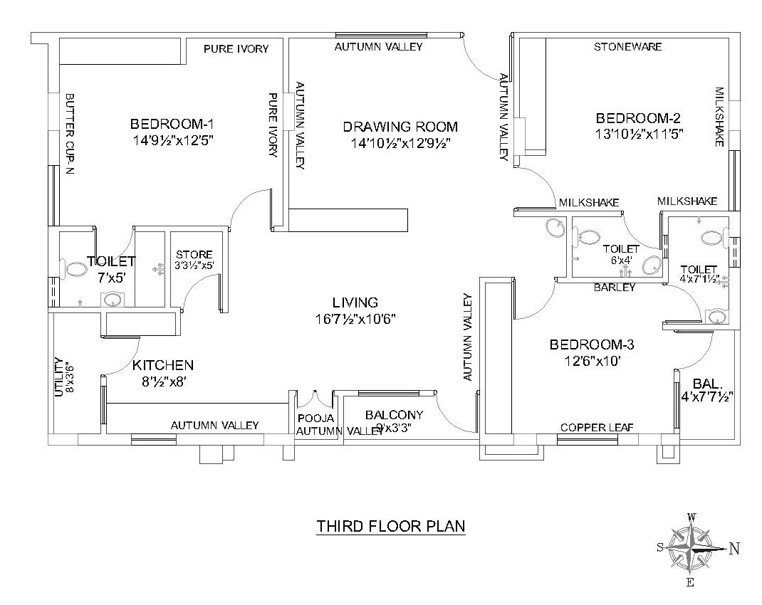
The Residential Flats at Alwal is a multi-unit apartment building on a corner site bounded by 40'-wide roads on two sides. The building accommodates two 3BHK units per floor across four floors, totaling eight residential units with shared vertical circulation via a central staircase and lift core.
Each 3BHK unit is organized around a central corridor with living, dining, and kitchen spaces oriented toward the exterior and three bedrooms — including a master bedroom with attached dressing room and toilet — arranged for privacy and natural light access on both street frontages.
Unit Planning
The first floor plan places two distinct unit types side by side, sharing a central corridor and lift core. Each unit includes a living room, dining area, kitchen with utility, pooja room, master bedroom with dressing and toilet, two additional bedrooms each with attached toilet, and a balcony. The typical floor plan consolidates this arrangement across all upper floors.
Academic project produced at Sri Venkateshwara College of Architecture · S.S. Infrastructure Pvt. Ltd. · Displayed for portfolio purposes




Planning Approach
The corner site condition was used to advantage — locating the building entry and lift core at the center of the plot allows both unit types equal access to the two street frontages, maximizing daylight and ventilation for living and bedroom spaces on opposing sides.
Furniture Integration
Floor plans were drawn with full furniture layouts to test livability at the planning stage — confirming bedroom clearances, kitchen workflow, and living room proportions before finalizing the unit configuration.